2d cad drawing of doors and windows elevation auto cad software
Description
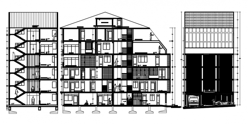
2d cad drawing of doors and windows elevation autocad software detailed with doors exterior and elevation with staircase part with lift area and other detailed with parking area seen in drawing with windows with people blocks
File Type:
DWG
File Size:
580 KB
Category::
Dwg Cad Blocks
Sub Category::
Windows And Doors Dwg Blocks
type:
Gold
Uploaded by:
Eiz
Luna

