Hotel building 2d view CAD layout plan autocad software file
Description
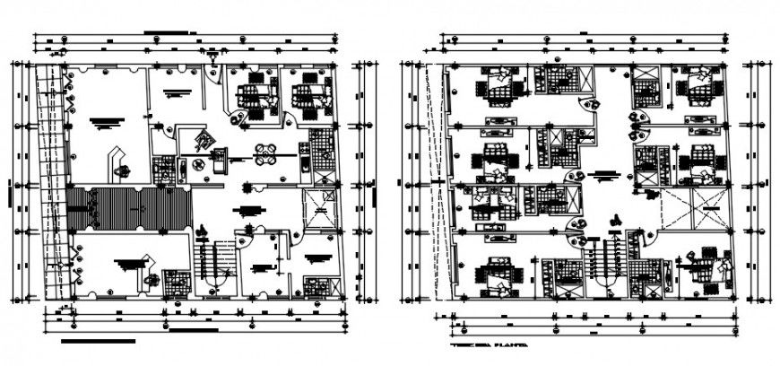
Hotel building 2d view CAD layout plan autocad software file that shows work plan drawings details of building along with floor level dteuals and dimension hidden line details. Furniture layout staircase details also included in drawings.
Uploaded by:
Eiz
Luna

