Creative drawing room cabinets and furniture drawing details dwg file
Description
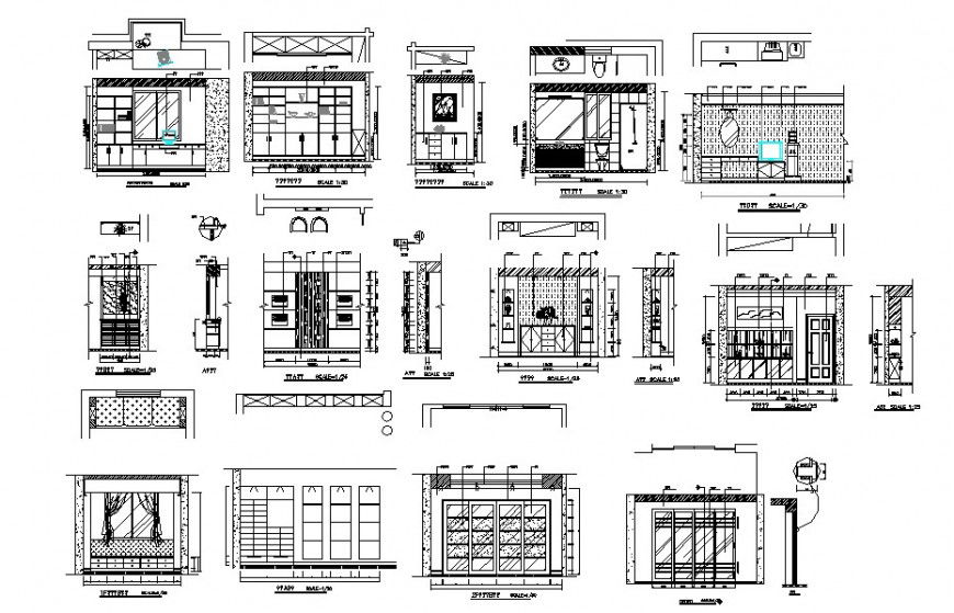
Creative drawing room cabinets and furniture drawing details that include a detailed view of book case cabinet, tv cabinet with drawers and cabinets etc with colours details and size details, type details etc for multi-purpose uses for cad projects.
Uploaded by:
Eiz
Luna

