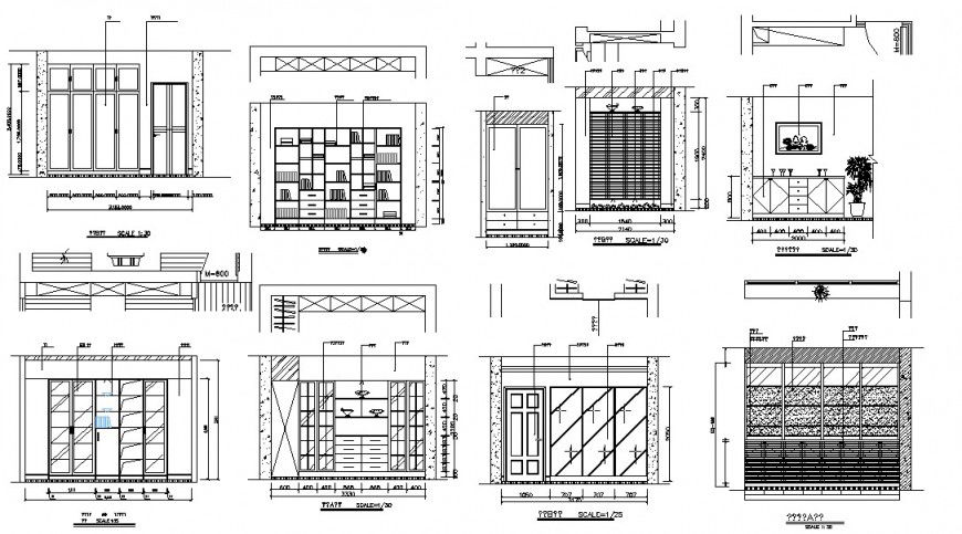
Book case, cabinet and cupboard elevation drawing details dwg file
Description
Book case, cabinet and cupboard elevation drawing details that include a detailed view of book case cabinet, tv cabinet with drawers and cabinets etc with colours details and size details, type details etc for multi-purpose uses for cad projects.
Uploaded by:
Eiz
Luna
