House elevation section and plan details 2d view autocad file
Description
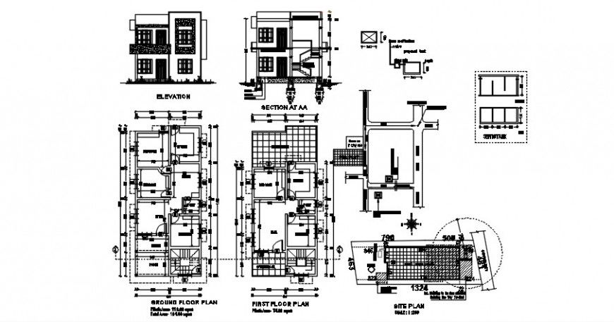
House elevation section and plan details 2d view autocad file that shows housework plan drawings details along with house front elevation details and sectional details leveling dimension hidden line details. Site area details and door window blocks floor level detailing also included in drawings.
Uploaded by:
Eiz
Luna

