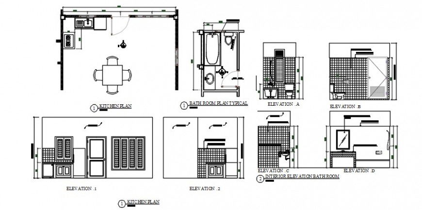
Kitchen and bathroom area drawings detail 2d view plan dwg file
Description
Kitchen and bathroom area drawings detail 2d view plan dwg file that shows kitchen area plan details along with kitchen automation and furniture blocks details. Sanitary bathroom area details along with sanitary blocks details of watercloset washbasin bath-tub details elevation dteials also included in drawings.
Uploaded by:
Eiz
Luna

