2d cad drawing of high school floor elevation auto cad software
Description
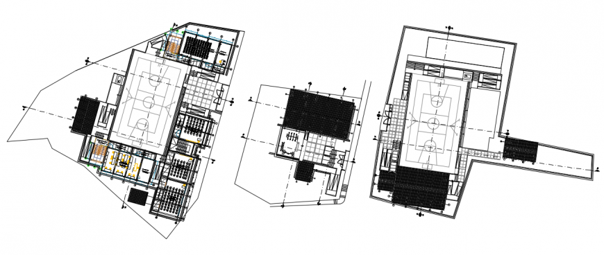
2d cad drawing of high school floor elevation autocad software detailed with school elevation with classroom in row wise and seen in drawing with seprate football court an dother reated campus with upper terrace floor with tank.
Uploaded by:
Eiz
Luna

