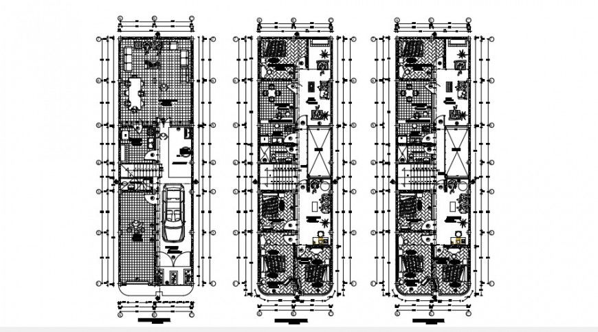
3 story residence layout plan with furniture detail
Description
2d cad drawing of 3 story residence layout plan along with all furniture detailing includes 8 bedrooms, drawing room, living room, kitchen with dining area, vehicle parking area, and enterance reception area, download in free cad file and use for multipurpose cad presentation.
Uploaded by:
Eiz
Luna

