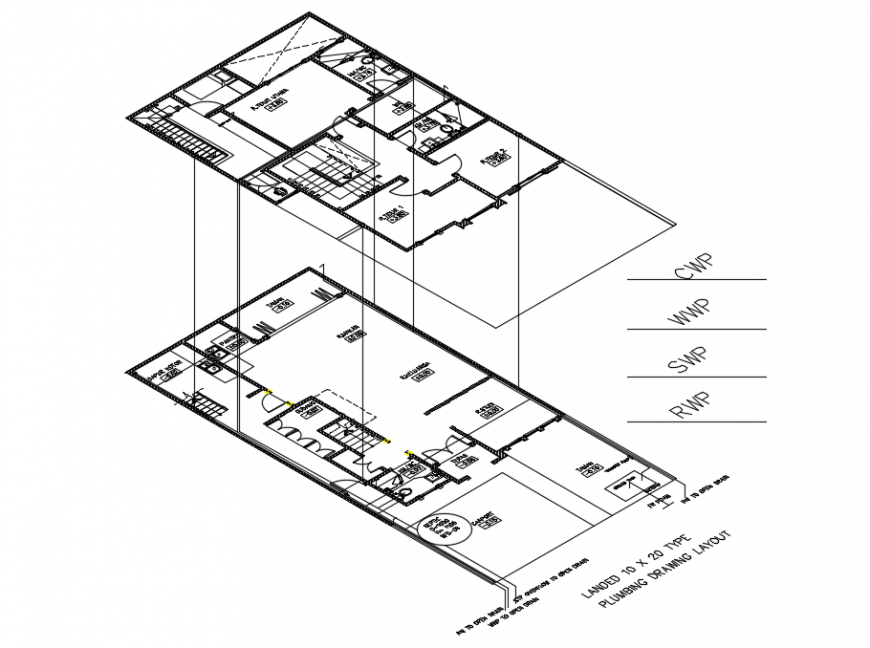
2d cad drawing of Plumbing drawing layout plan autocad software
Description
2d cad drawing of Plumbing drawing layout plan autocad software detailed with aall toilet room of bedroom and common toilet area of living room and other detailed wash area utility zone seen in plumbing layout connection.
Uploaded by:
Eiz
Luna
