2d drawings details of reinforcement RCC structural dwg file
Description
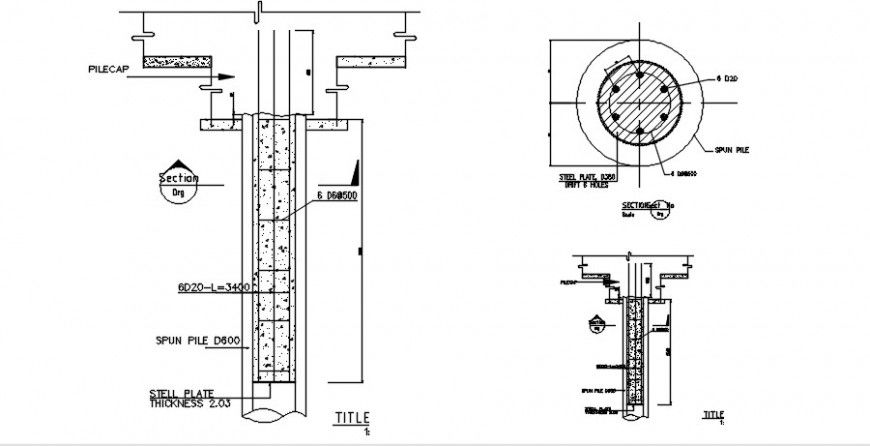
2d drawings details of reinforcement RCC structural dwg file that shows concrete masonry details along with dimension details and reinforcement details in tension and compression zone along with main distribution hook up and bent up bars dteials. The structure is a reinforced concrete cement (RCC) structure.
File Type:
DWG
File Size:
—
Category::
Construction
Sub Category::
Reinforced Cement Concrete Details
type:
Gold
Uploaded by:
Eiz
Luna

