2d CAD plan elevation and sectional drawing of an apartment autocad file
Description
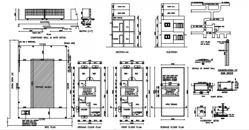
2d CAD plan elevation and sectional drawing of an apartment autocad file that shows apartment front elevation details along with sectional detials of the apartment and work layout plan of the apartment. Staircase details dimension hidden line details site area details also included in drawings.
Uploaded by:
Eiz
Luna

