2d plan and sectional drawings detail of sanitary bathroom dwg file
Description
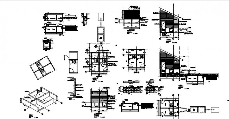
2d plan and sectional drawings detail of sanitary bathroom dwg file that shows bathroom plan dteials along with dimension details section line detailed. Sanitary blocks details of washbasin watercloset along with sectional details of sanitary toilet also included in drawings.
Uploaded by:
Eiz
Luna

