2d CAD furnished house floor plan details in autocad software file
Description
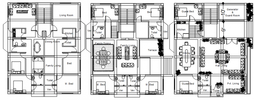
2d CAD furnished house floor plan details in autocad software file that shows work plan of the house along with room dimension door window blocks floor level dteials. Room details includes details of drawings room bedroom kitchen and dining area along with staicase parking space details also included in drawings
Uploaded by:
Eiz
Luna
