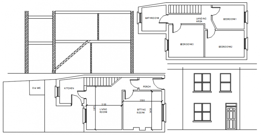
Elevation and plan of housing blocks 2d view CAD drawings in autocad file
Description
Elevation and plan of housing blocks 2d view CAD drawings in autocad file that shows work plan of house along with room details of drawings room bedroom kitchen dining area details with elevation and floor leevl details also incldued in drawings.
Uploaded by:
Eiz
Luna

