2d cad drawing of flat top view elevation autocad software
Description
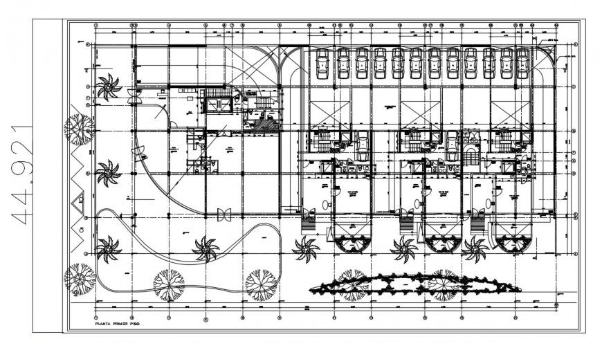
2d cad drawing of flat top view elevation autocad software detailed with flat elevation house drawing with house floor plan with living room and dining area and other related area with kitchen layout plan and other store room and wash area
Uploaded by:
Eiz
Luna

