2d water cleaning cad file
Description
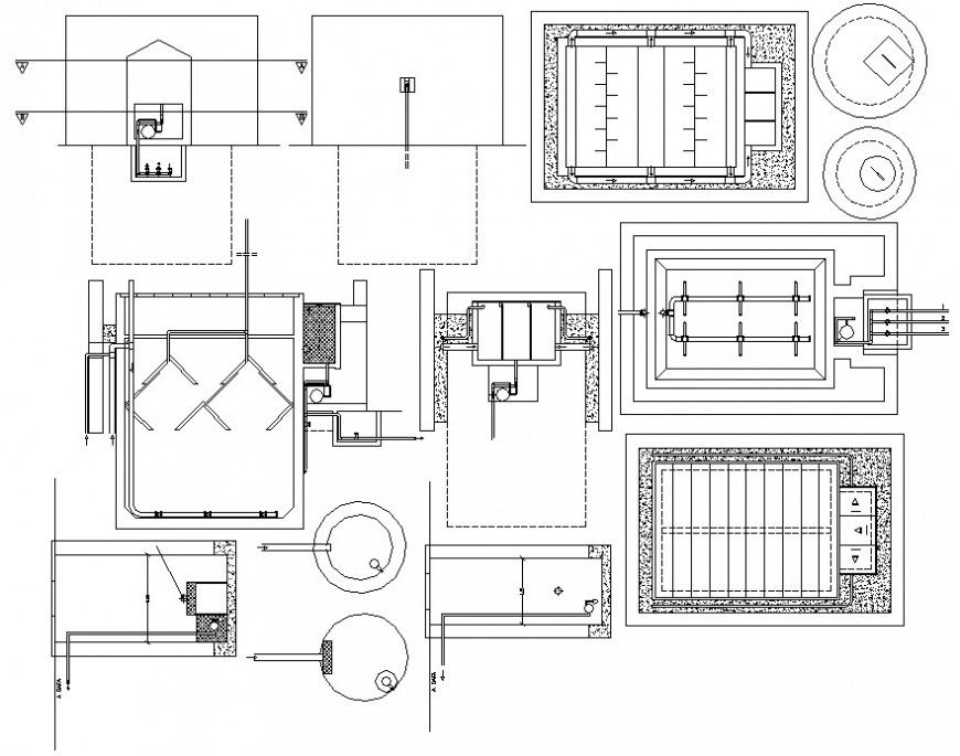
2d cad drawing includes a water collection chamber for evacuation to filtering galleries tube for cleaning sludge in water, water ingress waste condominium Galicia water entry form of a condominium.
File Type:
DWG
File Size:
66 KB
Category::
Mechanical and Machinery
Sub Category::
Mechanical Engineering
type:
Gold
Uploaded by:
Eiz
Luna

