2d cad drawing of architecture final autocad software
Description
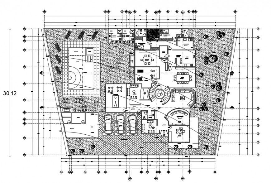
2d cad drawing of artitecture final autocad software detaikled with cra parking aerea for three cars abd living area and round staircase area and dining area and playground outsie the house plan and other garden area seen in drawing.
Uploaded by:
Eiz
Luna

