power project hospital cad file
Description
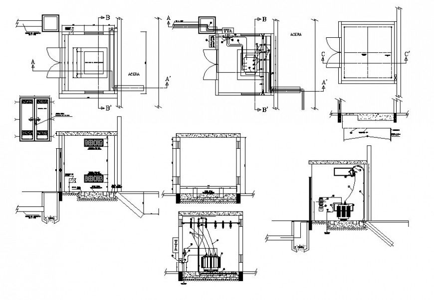
find here section plan elevation design showing that project power and Low Voltage Media IESS Hospital, includes, lighting circuits, power circuits, power circuits stabilized, Circuits Air Conditioner, voice and data circuits, line diagrams, Circuits Outdoor Lighting and pipeline construction, Chamber of Transformation phase.
File Type:
DWG
File Size:
961 KB
Category::
Electrical
Sub Category::
Electrical Automation Systems
type:
Gold
Uploaded by:
Eiz
Luna

