Architecture hotel project cad file
Description
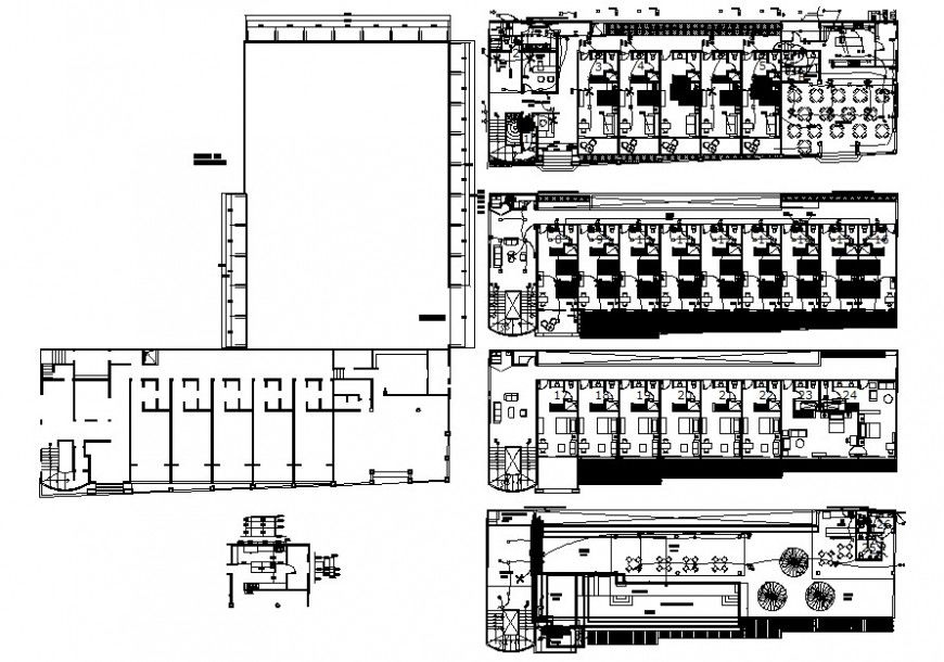
the architecture layout plan has been designing in autocad software, a Drawing showing layout plan includes bedrooms, cafeteria, reception area, waiting area, collection of fabulous ideas that would serve as a good source download in free autocads file and get more detailing about hotel project.
Uploaded by:
Eiz
Luna

