Housing units 2d view layout floor plan CAD drawings in autocad file
Description
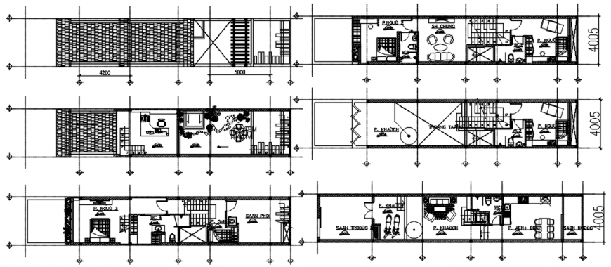
Housing units 2d view layout floor plan CAD drawings in autocad file that shows the work plan of the house along with room dimension door window blocks floor level details. Room details include details of drawings room bedroom kitchen and dining area along with staicase parking space details also included in drawings
Uploaded by:
Eiz
Luna

