Foundation footing RCC structure 2d view CAD drawings dwg file
Description
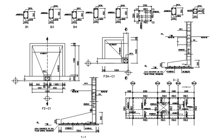
Foundation footing RCC structure 2d view CAD drawings dwg file that shows foundation footing details along with reinforcement detials in tension and compression zone main and distribution hook up and bent up bars details. The structure is a reinforced concrete cement (RCC) structure.
Uploaded by:
Eiz
Luna

