Gate house drawings elevation 2d view autocad software file
Description
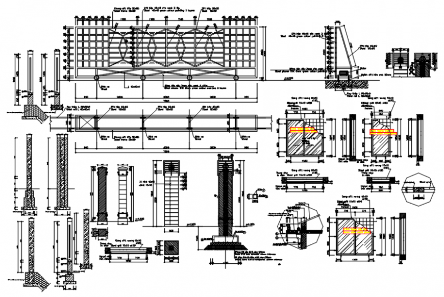
Gate house drawings elevation 2d view autocad software file that shows gate plan details along with footing details and dimension hidden line details and other units details also include in drawings.
Uploaded by:
Eiz
Luna

