2d cad drawing of store room autocad software
Description
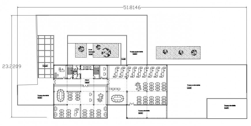
2d cad drawing of store room autocad software detailed with store elevation with all kinds of furniture layout of conference table and chair and other detailed work station area and other staff work area table and chair and other meeting room furniture layout.
File Type:
DWG
File Size:
4.3 MB
Category::
Interior Design
Sub Category::
Showroom & Shop Interior
type:
Gold
Uploaded by:
Eiz
Luna

