room building detail cad file
Description
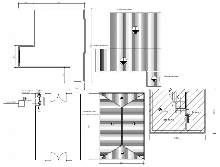
2d cad drawing of layout plan, roof plan, toilet plumbing detail, download in free architecture room building cad file.
Uploaded by:
Eiz
Luna
2d cad drawing of layout plan, roof plan, toilet plumbing detail, download in free architecture room building cad file.
Uploaded by:
Luna