2d cad drawing of basher ground floor and first-floor auto cad software
Description
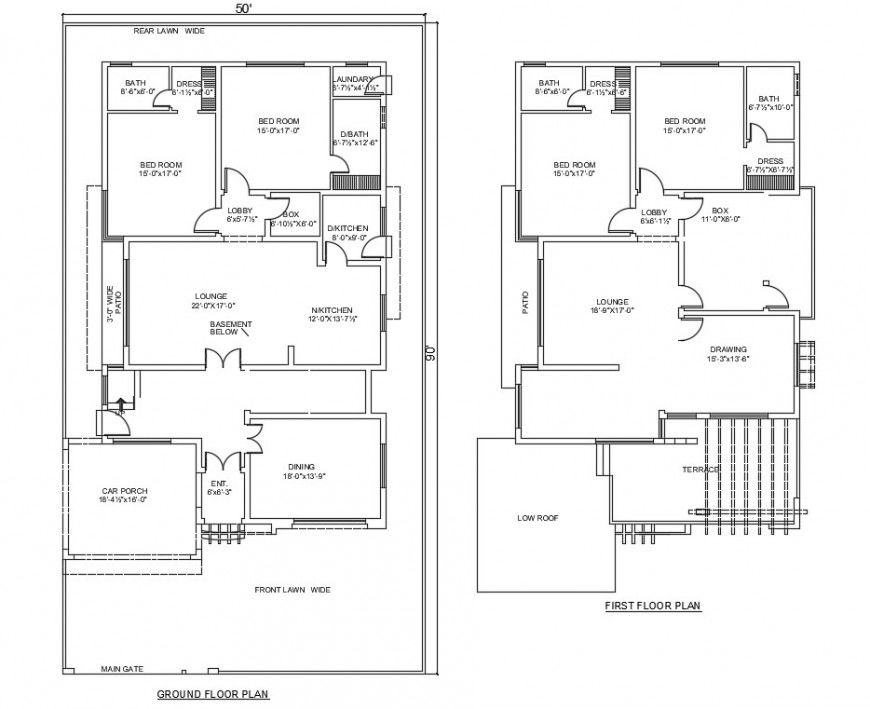
2d cad drawing of basher ground floor and first floor autocad software detailed with car porch and enterance area and dining area and lounge area with kitchen area and bedroom plan with laundary area and bath and dress area and first floor plan with drawing room and two bedroom plan.
Uploaded by:
Eiz
Luna

