2d cad drawing of health post electrical layout plan autocad software
Description
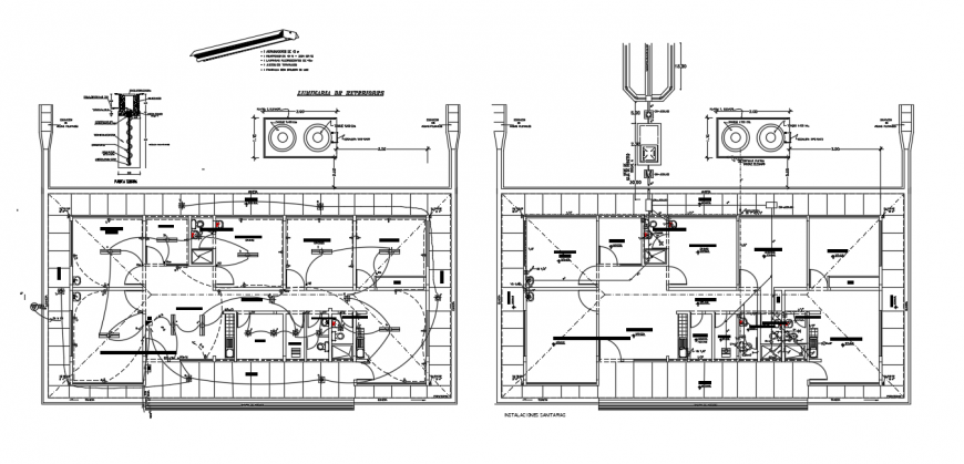
2d cad drawing of health post electrical layout plan autocad software detailed with all connected room plan with doctor cabin ans staff area and other detailed reception area shown with electrical layout plan with mentioned detail drawing shown with main area with elevation shown with electrical bolt seen in drawing.
Uploaded by:
Eiz
Luna
