2d drawings detailing of centerline plan of a house in autocad software file
Description
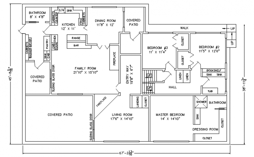
2d drawings detailing of centerline plan of a house in autocad software file that shows work plan of the apartment along with elevation details of the apartment and room details of drawings room bedroom kitchen and dining area along with house length width details of 45-8.5" * 67'-2." details also included in drawings.
Uploaded by:
Eiz
Luna

