Residential apartment drawings 2d view CAD layout plan in autocad dwg software file
Description
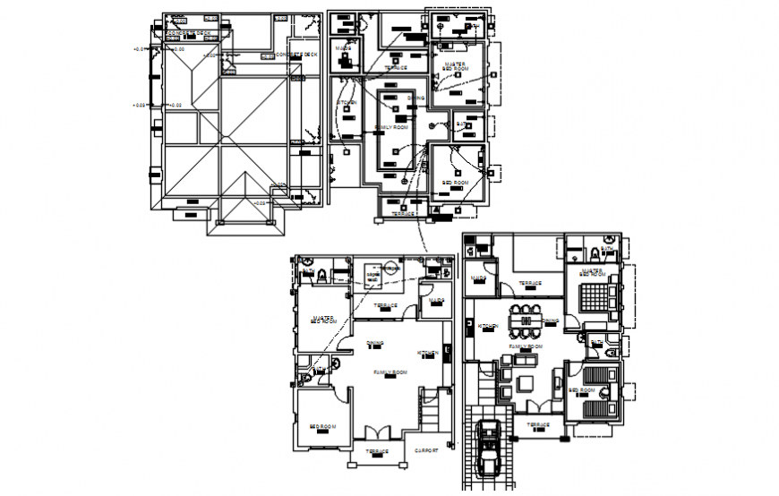
Residential apartment drawings 2d view CAD layout plan in autocad software file that shows a work plan of the house along with room dimension door window blocks floor level detail. Room details include details of drawings room bedroom kitchen and dining area along with staicase parking space details also included in drawings
Uploaded by:
Eiz
Luna

