2d CAD structural section details of building dwg file
Description
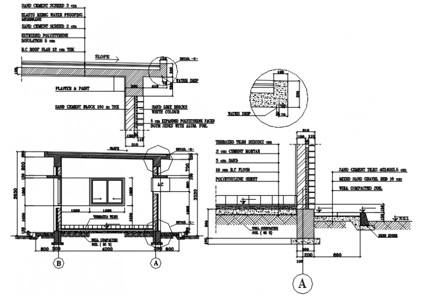
2d CAD structural section details of building dwg file that shows building sectional details along with concrete work details and wall section structural blocks and other details also included in drawings.
File Type:
DWG
File Size:
313 KB
Category::
Construction
Sub Category::
Construction Detail Drawings
type:
Gold
Uploaded by:
Eiz
Luna

