2d CAD drawings details of marble finishing work dwg AutoCAD file
Description
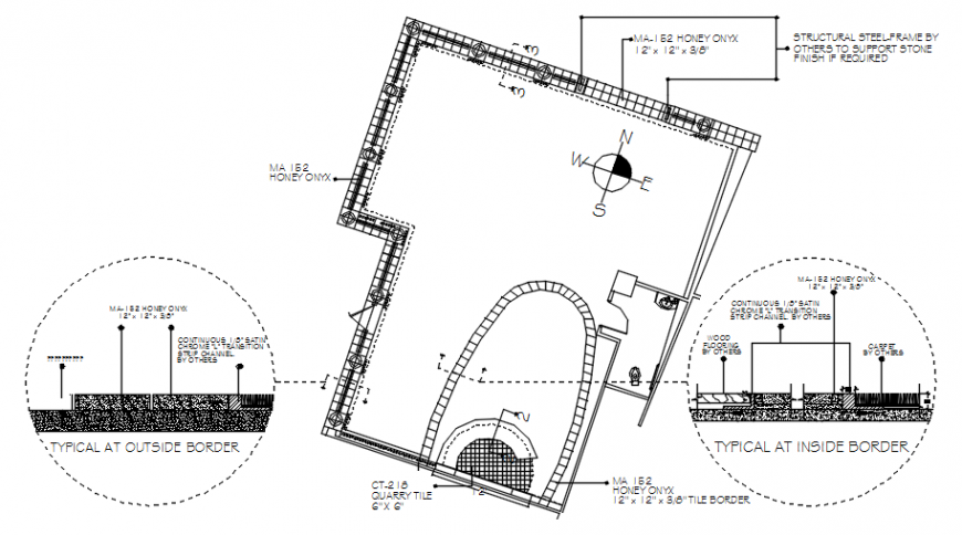
2d CAD drawings details of marble finishing work dwg AutoCAD file that shows slab details along with floor finishing details and dimension section plan details of flooring is shown in drawings.
Uploaded by:
Eiz
Luna

