Structural blocks drawings detailing in autocad software file
Description
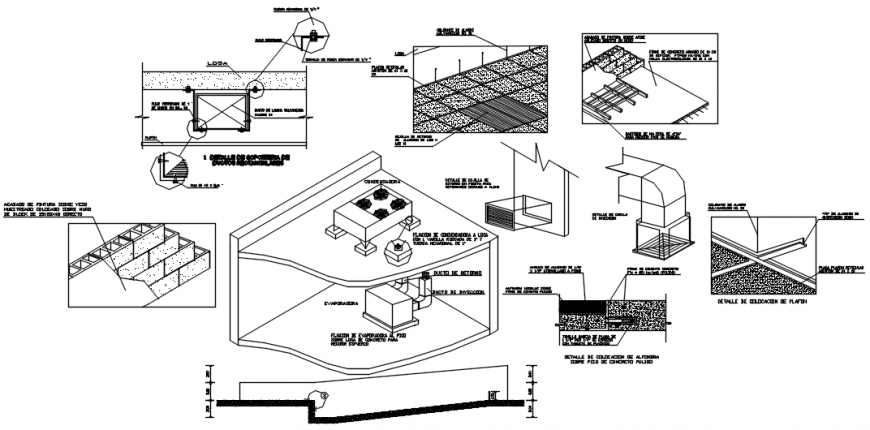
Structural blocks drawings detailing in autocad software file that shows dimension dteials along with concrete masonry details and brick masonry structural units detailing also included in drawings.
Uploaded by:
Eiz
Luna

