2d cad drawing of top elevation oh home plan autocad software
Description
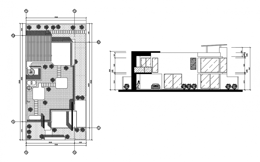
2d cad drawing of top elevation oh home plan autocad software detailed with top with garden view with staircase area and other detailed floor plan and exterior with doors and windiws and trees block and bzlcony area.
Uploaded by:
Eiz
Luna
