2d cad drawing of house drawing floor plan elevation autocad software
Description
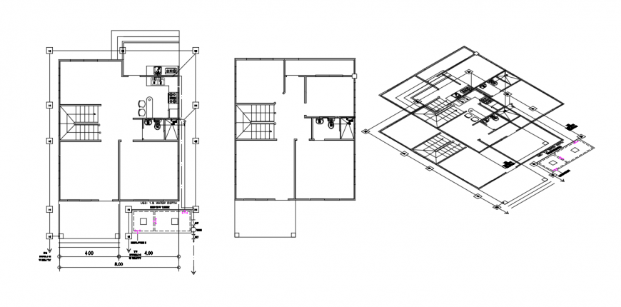
2d cad drawing of house drawing floor plan elevation autocad software detailed with house living hall and dining area and staircase with washroom common area and wall and tank water depth shown with room elevation plan floor.
Uploaded by:
Eiz
Luna

