CAD house plan 2d drawings detailing in autocad software file
Description
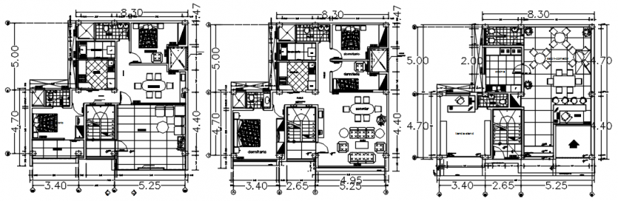
CAD house plan 2d drawings details in autocad software file that shows work plan drawings details of the house along with furniture blocks details in house and room details include details of drawings room bedroom kitchen and dining area sanitary toilet bathroom details. House length width dteials also included in drawings.
Uploaded by:
Eiz
Luna

