Multi user acoustic insulation plan dwg autocad software file
Description
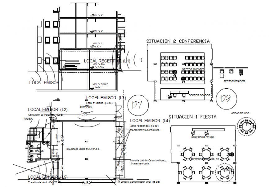
Multi user acoustic insulation plan dwg autocad software file that shows furniture blocks details in the room along with sanitary toilet details and dimension hidden line details leveling dteials.
Uploaded by:
Eiz
Luna

