2d cad drawing of apartment house floor plan autocad software
Description
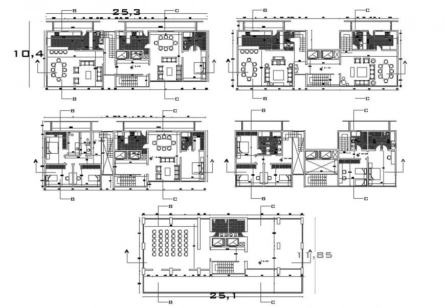
2d cad drawing of apartment house floor plan autocad software detaild with living room with dining area and kitchen area and wash area and common toilet room and staircase area one bedroom plan.
Uploaded by:
Eiz
Luna

