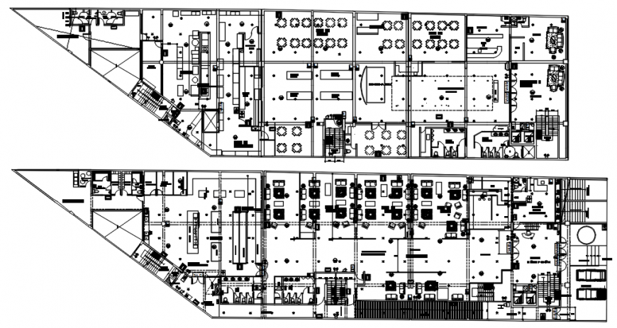
Drawing details of restaurant building floor plan dwg file
Description
Drawing details of restaurant building floor plan dwg file that shows work plan drawings details of building along with dimension hidden line details and floor level details. Door window blocks details and dining area kitchen area details also included in the drawing.
Uploaded by:
Eiz
Luna
