Kitchen construction and plumbing structure drawing details dwg file
Description
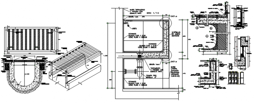
Kitchen construction and plumbing structure drawing details Here you can find free auto-cad file of normal water absorption separation gasket with ceramic floor celima twilight series and concrete support with all sided sectional details with structure and interior details, equipment details, electrical layout plan details and stainless steel laundry, post-formed board and chrome handles and much more of kitchen details.
File Type:
DWG
File Size:
832 KB
Category::
Construction
Sub Category::
Kitchen And Remodeling Details
type:
Gold
Uploaded by:
Eiz
Luna
