Metallic church gate elevation and installation details dwg file
Description
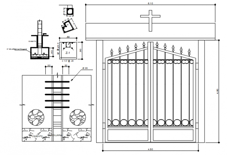
Metallic church gate elevation and installation details that includes a detailed view of front elevation view, brick wall view with sectional details, dimension details, detail of picaporte to the floor, detail of hinge fixing with material and measures details included, not to scale details and much more of gate details.
File Type:
DWG
File Size:
1.3 MB
Category::
Dwg Cad Blocks
Sub Category::
Windows And Doors Dwg Blocks
type:
Gold
Uploaded by:
Eiz
Luna
