Water tank section, plan and plumbing structure details with pump room dwg file
Description
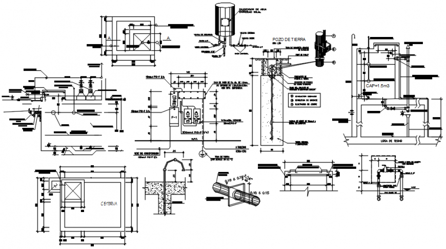
Water tank section, plan and plumbing structure details with pump room that includes a detailed view of method of fixing water gauge meter with boundary wall, septic tank plan details, elevation and all sided sectional details with dimensions details, manhole plan details, water depth detail, memory of material details, structure detail and much more of tank details.
Uploaded by:
Eiz
Luna
