Simple house all sided elevations and structure drawing details dwg file
Description
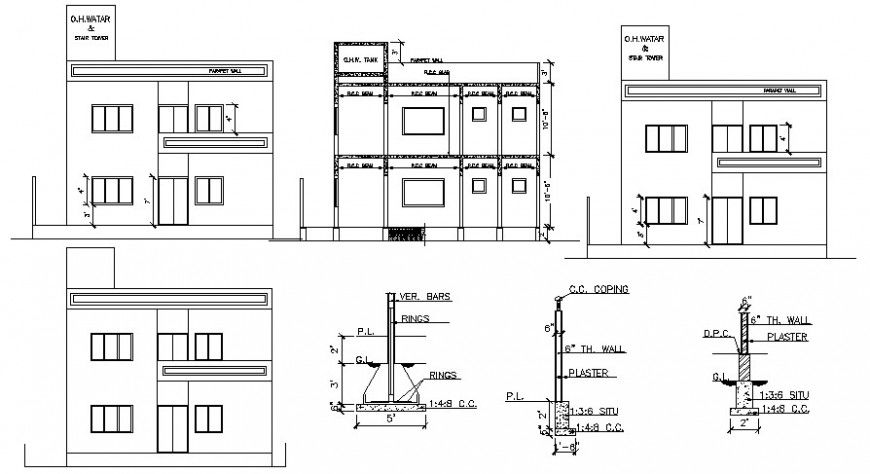
Simple house all sided elevations and structure drawing details that includes a detailed view of flooring view with doors and windows view and staircase view details, balcony view with wall design, dimensions and roof or terrace view and much more of house details.
Uploaded by:
Eiz
Luna

