2d plan of restaurant building plan details in autocad software file
Description
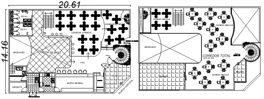
2d plan of restaurant building plan details in autocad software file that shows work plan drawings details along with floor level details and furniture blocks details in building with staircase details and other details also included in drawings.
Uploaded by:
Eiz
Luna
