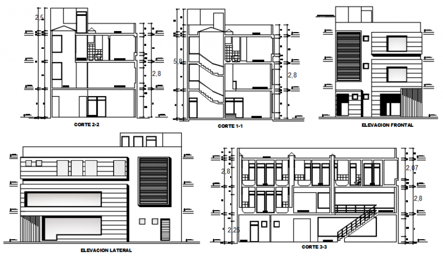
Elevation and section drawings details of two-story apartment dwg file
Description
Elevation and section drawings details of two-story apartment dwg file that shows apartment different sides of elevation like front elevation and side elevation with section details and floor level details with leveling details. Staircase details and other details of the building also includes in drawings.
Uploaded by:
Eiz
Luna

