Main single door elevation and installation drawing details dwg file
Description
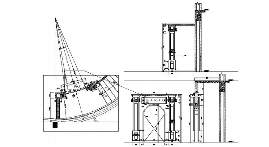
Main single door elevation and installation drawing details that includes a detailed view of door elevation details with wires and fences and galvanized mesh with clamps galv, aluminum couplings amarres galv, rh place 1 into the spot and 2 in the corners, pe as reinforcement in straight sections, technical specifications and model selection, symbology details, dimensions details with joints details and much more of door installation details.
File Type:
DWG
File Size:
17.5 MB
Category::
Dwg Cad Blocks
Sub Category::
Windows And Doors Dwg Blocks
type:
Gold
Uploaded by:
Eiz
Luna

