2d cad drawing of cacao factory ceiling layout plan autocad software
Description
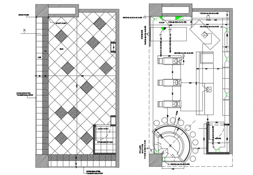
2d cad drawing of cacao factory ceiling layout plan autocad software detailed with basic strture layout with all connected ceiling plaster surface and true ceiling shown with storage room and other elevation room surface seen in drawing and other reception area with reception designer table.
Uploaded by:
Eiz
Luna

