Technical school distribution plan cad drawing details dwg file
Description
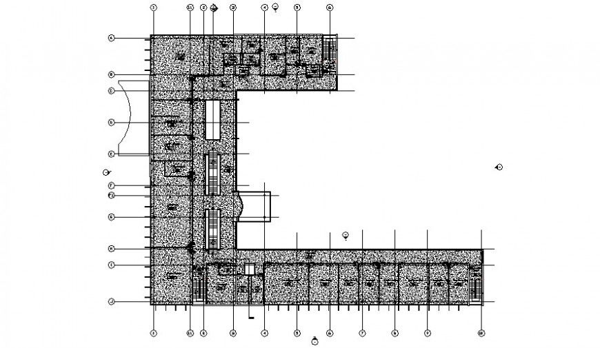
Technical school distribution plan cad drawing details that includes a detailed view of main entry gate with parking area for students and staff and classrooms, stream departments, library and laboratory, staff room and cultural hall with sanitary for staff and sanitary for students, canteen/cafeteria, sports ground, meeting room, cleaning department, admission office, clerk room, principal or head office and much more of education building project with free download feature.
Uploaded by:
Eiz
Luna

