2d cad drawing of house elevation Oliver autocad software
Description
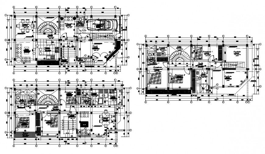
2d cad drawing of house elevation oliver autocad software detaield with car parking area and detaild living room with dining area and kitchen area and common toilet area and other floor elevation with three bedroom plan with attcehd toilet area and mentioned dimension shown in drawing.
Uploaded by:
Eiz
Luna

