top view plan and sectional detailing of a bank
Description
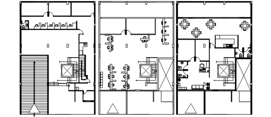
here there is top view plan and sectional detailing of a bank with furniture arrangement details and plan view in auto cad format
Uploaded by:
Eiz
Luna
here there is top view plan and sectional detailing of a bank with furniture arrangement details and plan view in auto cad format
Uploaded by:
Luna