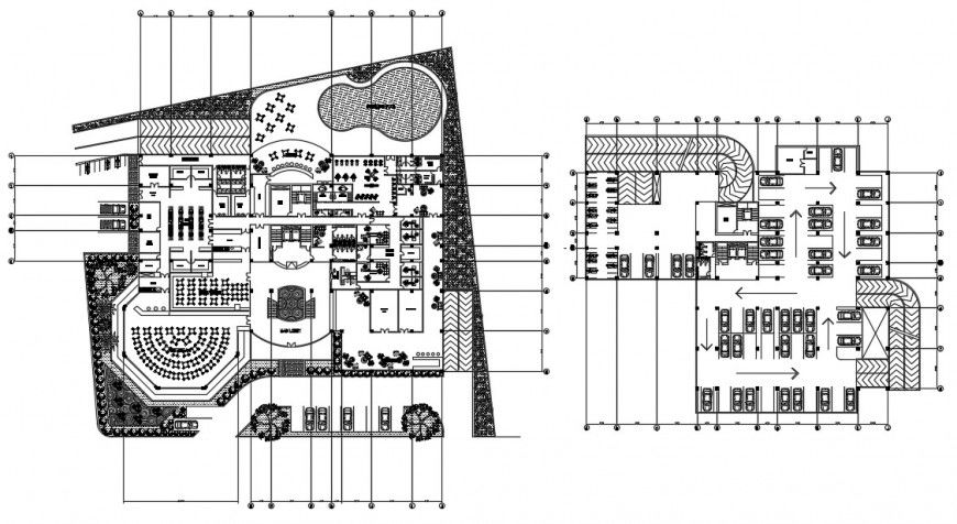
2d cad drawing of hotel outer elevation autocad software
Description
2d cad drawing of hotel outer elevation autocad software detailed with basic detailing given with all necessary elements shown with all elevated drawing with all basic drawing and other detailed description shown with all basic detailing given in floor elevation.
Uploaded by:
Eiz
Luna

