2d cad drawing of community center autocad software
Description
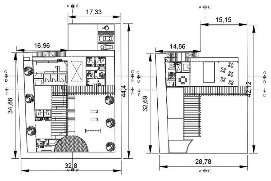
2d cad drawing of community centre autocad software detailed with car parking area and other centre elevation shown with seprate toilet area and centre complex and auditorium elevation and dining area separately with mentioned dimension shown in drawing with all related description.
Uploaded by:
Eiz
Luna

